10ПП 14 перемычки плитные

Чертеж изделия:
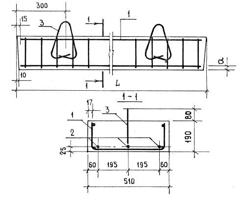
Характеристики изделия:
ПараметрЗначение
длина1420 мм
ширина510 мм
высота190 мм
масса344 кг
нормативный документСерия 1.038.1-1

10ПП 14  Железобетонные перемычки плитного типа Серия 1.038.1-1.