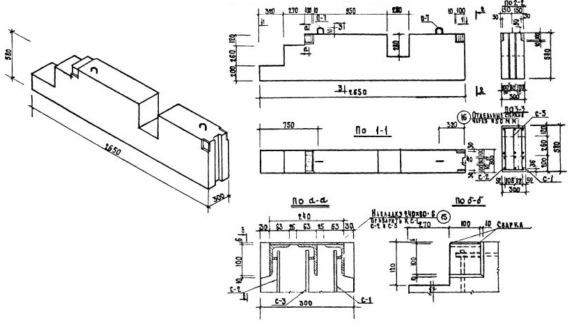
ВБ-27.6.3-1

Чертеж изделия:
Характеристики изделия:
ПараметрЗначение
Длина2650 мм
Ширина300 мм
Высота580 мм
Масса966 кг
Нормативный документСерия 1.134-1

ВБ-27.6.3-1   Блоки внутренних поперечных стен горизонтальные по Серии 1.134-1.