П 30.12.22

Чертеж изделия:
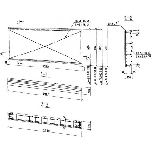
Характеристики изделия:
ПараметрЗначение
длина2980 мм
ширина1190 мм
высота220 мм
вес980 кг
серия1.143-4

П 30.12.22 Панели перекрытия сплошные по серии 1.143-4.