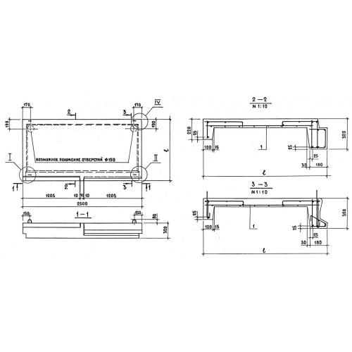
2ЛП 25.15

Чертеж изделия:
Характеристики изделия:
ПараметрЗначение
длина2500 мм
ширина1600 мм
высота320 мм
масса1350 кг
нормативный документСерия 1.152.1-8

2ЛП 25.15  Лестничные площадки ребристые  Серия 1.152.1-8.