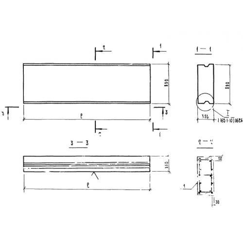
П 60.9.35

Чертеж изделия:
Характеристики изделия:
ПараметрЗначение
длина5670 мм
ширина890 мм
высота350 мм
вес1350 кг
серия1.165.1-10

П 60.9.35 Панели покрытия по серии 1.165.1-10.