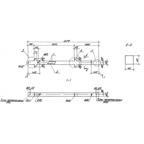
К 38 колонны

Чертеж изделия:
Характеристики изделия:
ПараметрЗначение
длина12570 мм
ширина400 мм
высота400 мм
масса5200 кг
нормативный документСерия 1.420-35.95

К 38 Колонны Серия 1.420-35.95.