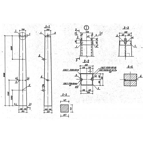
ВС-1 стойка

Чертеж изделия:
Характеристики изделия:
ПараметрЗначение
длина9000 мм
ширина417 мм
высота407 мм
масса2880 кг
нормативный документСерия 3.407-102

ВС-1  Стойки вибропрессованные Серия 3.407-102.