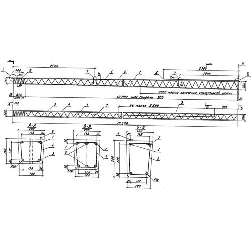
СВ 105

Чертеж изделия:
Характеристики изделия:
ПараметрЗначение
длина10500 мм
ширина200 мм
высота280 мм
масса1180 кг
нормативный документСерия 3.407.1-136

СВ 105   Стойки вибрированные железобетонные для опор ЛЭП,  Серия 3.407.1-136.