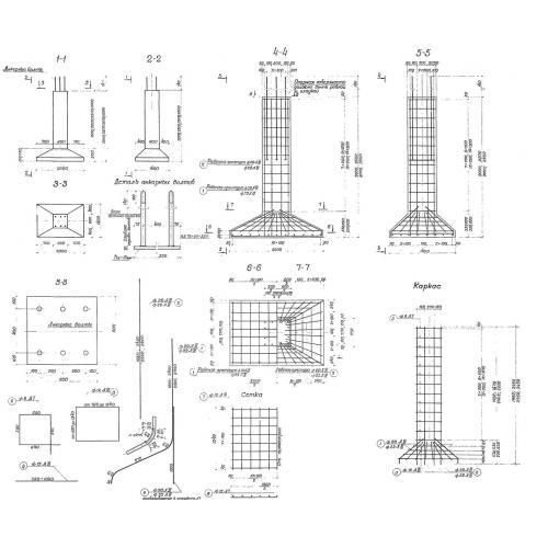
Б 1-2.5

Чертеж изделия:
Характеристики изделия:
ПараметрЗначение
длина2000 мм
ширина1400 мм
высота2500 мм
вес4475 кг
серия3.501.2-123

Б 1-2.5 Фундаментные блоки по серии 3.501.2-123.