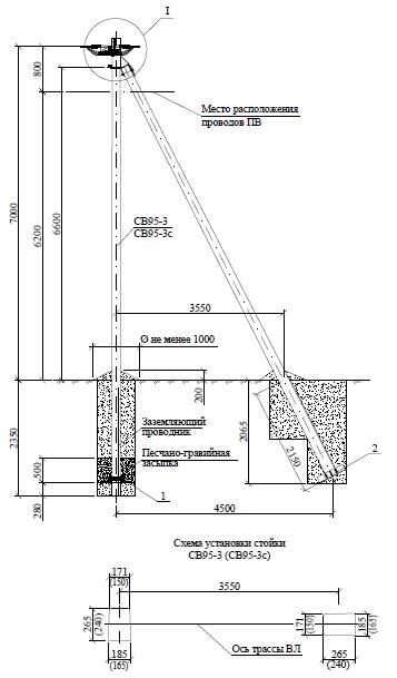
А 32

Чертеж изделия:
Характеристики изделия:
ПараметрЗначение
длина9250 мм
ширина185 мм
высота265 мм
масса900 кг
нормативный документШифр 26.0085

А 32  Анкерные двухцепные опоры (концевые)  Шифр 26.0085.